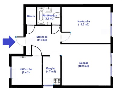
Elado_ingatlan_20_kerulet < >