XI. Sasad

Elado_ingatlan_11_kerulet < >
Elado_ingatlan_11_kerulet Elado_ingatlan_11_kerulet
Referens:

dr. Oroszi Zsuzsanna

06/209/458-278

Érdeklődöm






lakás
11. kerület, XI. Sasad
212,5 milló Ft
144 nm
új, újszerű, luxus, nem földszinti, lift, terasz, 3 háló, garázs
1
2020
==/4299

XI. Sasadon, most épülő, exklusív, 4 lakásos, liftes társasházban, belső kétszintes lakás eladó, 245 m2-es leválasztott, kizárólagos használatú saját kertrésszel, ha igényli!

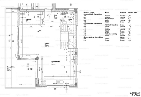
XI. Sasadon, új építésű ház 2. emeletén, nettó 144 m2-es + 81 m2 teraszos, nappali + 3 hálós, 3 fürdőszobás, belső két szintes lakás eladó.

Beosztás:
alsó szint: 16 m2-es hálószoba saját fürdőszobával és garróbal, 2 másik hálószoba (12 és 10 m2), fürdőszoba, háztartási helyiség, közlekedő.
felső szint: amerikai-konyhás nappali (50 m2), a nappaliból és az étkezőből kijára a 30 m2-es teraszra, előtér, fürdőszoba, gardrób.

A lakáshoz teremgarázshely vásárolható, ára: 5 millió Ft.

Megújuló energia: napelem, saját hőszivattyú
Szellőzőrendszer
Mennyezeti hűtés, padlófűtés
Nívós, hőszigetelt nyílászárok, szúnyoghálós ablakok
Beépített motoros redőnyök, riasztó, tolóajtós teraszajtók, igényes felszereltség!