Bel-buda

Elado_ingatlan_1_kerulet < >
Elado_ingatlan_1_kerulet Elado_ingatlan_1_kerulet
Referens:

Oroszi Zsuzsa
06/20/9458278

Érdeklődöm






üzlethelyiség, kereskedelmi ingatlan
1. kerület, Bel-Buda, Bel-buda
450,0 milló Ft
624 nm
nincs
==/54

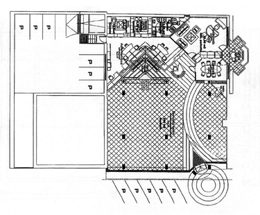
Buda forgalmas főútvonalán eladó egy reprezentatív üzlethelyiség-iroda, hatalmas üvegportállal, saját kültéri és belső udvari parkolókkal (5/1 db). A fűtés rendszert 3 éve távfűtésről hőszivattyús fűtésre cserélték.

Az ingatlant 17 éve ugyanaz a bérlő bérli, 5 évente megújuló szerződéssel. A jelenlegi szerződés 2027. februárig érvényes, bérleti díj: 5800 Euro+áfa (jövőre 5900 Euro+Áfa)!

Beosztás:
- Fszt (430 m2): nagy utcai üvegportálos (~17 méter). Jelenleg kb. 300 m2 egy légtér, továbbá 3 irodahelyiség, konyha, mellékhelyiségek. Ablakai nem csak az utcára, hanem a belső udvarra is nyílnak, több irányba, illetve üvegtetővel is rendelkezik. A teljes földszint egy légterűvé alakítható
- Pince, raktár (200 m2) Használható raktárnak, garázsnak, műhelynek is, mivel kocsilehajtóval rendelkezik!

A megjelölt árat +ÁFA terheli!